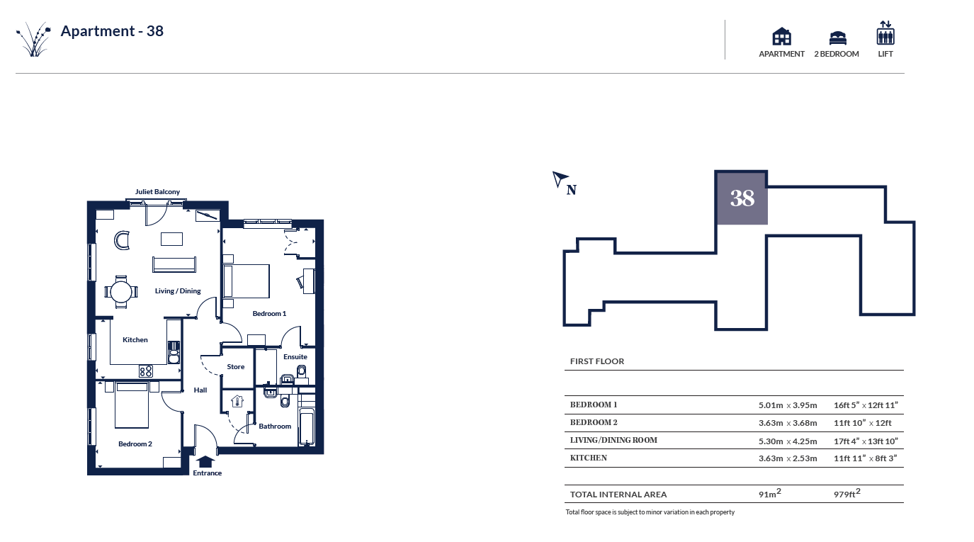
plot 38 plan | Featured home. See inside ground floor two-bedroom apartment 30 which enjoys peaceful woodland views